Van Hemertmarke 72 - Zwolle

Vraagprijs   € 535.000 k.k.  

Verkocht onder voorbehoud

Omschrijving

RIANTE HOEKWONING AAN EEN RUSTIGE STRAAT, MET PARKEERPLAATSEN OP EIGEN TERREIN

Deze 134 m² tellende hoekwoning staat aan een rustige straat in Zwolle-Zuid. Op enkele meters van de woning tref je een groot grasveld met diverse speeltoestellen en een trapveldje. De woning is gesitueerd aan de rand van de wijk. Een wandeling in het buitengebied, langs de rivier is daarom snel gemaakt. Met scholen, sportvoorzieningen en het winkelcentrum om de hoek een perfecte locatie om te wonen.

Ideaal is het kunnen parkeren van twee auto’s op eigen terrein. De voormalige garage is bij de woonruimte aangetrokken, waardoor er extra veel leefruimte is ontstaan op de begane grond. Naast de woning is een overkapping gemaakt, ideaal voor het stallen van een motor of een bakfiets.

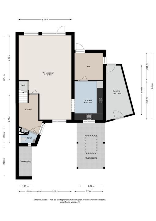
BEGANE GROND:

Jouw auto parkeer je onder de carport. De uitgebouwde entree aan de voorzijde geeft jou toegang tot de woning. Binnenkomst in de ruime hal, met aan de voorzijde het toilet. Vanuit de hal is er toegang tot de woonkamer. Bij binnenkomst ervaar je meteen de hoeveelheid lichtinval door de grote raampartijen aan de achterzijde. De ruimte beschikt ook over een eigen airco., hiermee kan je koelen én verwarmen. De voormalige garage is omgebouwd tot keuken. Hier is een hoekkeuken opgesteld in lichte kleurstelling. Vanuit het raam is er fraai zicht op het straatbeeld. Aangrenzend tref je de bijkeuken, die toegang biedt tot de achtertuin.

EERSTE VERDIEPING:

Overloop met toegang tot drie slaapkamers en de badkamer. De grootste slaapkamer heeft een oppervlakte van maar liefst ruim 14 m²! De badkamer bevindt zich aan de voorzijde en is voorzien van een gevelraam voor daglicht en extra ventilatie. Het geheel is tot het plafond betegeld en uitgevoerd met een wastafelmeubel met laden en spiegel, een lange wandkast, een ruime inloopdouche en een 2e wandcloset. Het geheel wordt verwarmd door de designradiator.

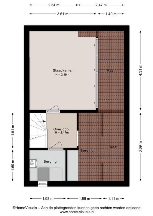
TWEEDE VERDIEPING:

Via de overloop is er toegang tot de vierde slaapkamer. Door de dakkapel is deze heerlijk ruim. Een airco zorgt voor verkoeling op zomerse dagen. Ook kan de ruimte hier mee verwarmd worden. Achter de knieschotten bevindt zich praktische bergruimte. Ook de overloop biedt bergruimte achter knieschotten. Vanaf de overloop is de separate wasruimte te bereiken. Hier zijn ook de cv-ketel en de mechanische afzuiging opgesteld. Het raam in de zijgevel zorgt hier voor daglicht en extra ventilatie.

TUIN:

De achtertuin ligt op het westen en is bereikbaar via een achterom. De tuin heeft een diepte van 9,3 meter en een breedte van 8,3 meter. Achter in de tuin is een overkapping aangebracht. Een heerlijk plekje om te relaxen met goed gezelschap. Langs de voormalige garage bereik je via de schuur de voortuin. Hier is onder de carport ruimte voor jouw auto. Ook kan ernaast nog een auto geparkeerd worden op eigen terrein. Een houten opslagplaats biedt ruimte voor de afvalcontainers.

Kenmerken

Overdracht

Prijs
€ 535.000 k.k.
Status
Verkocht onder voorbehoud
Oplevering
In overleg

Bouw

Soort woonhuis
Eengezinswoning, Hoekwoning
Soort bouw
Bestaande bouw
Bouwjaar
1987
Onderhoud binnen
Goed
Onderhoud buiten
Goed

Oppervlakten en inhoud

Woonoppervlakte
134m²
Perceeloppervlakte
215m²
Overig oppervlakte
10m²
Inhoud
497m³

Indeling

Aantal kamers
5
Aantal slaapkamers
4
Aantal badkamers
1
Verdiepingen
3

Energie

Energielabel
C
Isolatie
Volledig geisoleerd
Warm water
C.V.-ketel
Verwarming
C.V.-ketel
Ketel
Vaillant (Combi-ketel, Eigendom)

Buitenruimte

Ligging
Aan rustige weg, In woonwijk
Tuin
Achtertuin, Voortuin, Zijtuin
Achtertuin
West, 77m², 828×933m
Schuur
Aangebouwd hout

Garage

Soort garage
Carport

Locatie

[ { "address": "Van Hemertmarke 72", "zipCode": "8016 AV", "city": "Zwolle", "lat": 52.4841004, "lng": 6.10446 } ]
[{"featureType":"landscape","stylers":[{"hue":"#FFBB00"},{"saturation":43.400000000000006},{"lightness":37.599999999999994},{"gamma":1}]},{"featureType":"road.highway","stylers":[{"hue":"#FFC200"},{"saturation":-61.8},{"lightness":45.599999999999994},{"gamma":1}]},{"featureType":"road.arterial","stylers":[{"hue":"#FF0300"},{"saturation":-100},{"lightness":51.19999999999999},{"gamma":1}]},{"featureType":"road.local","stylers":[{"hue":"#FF0300"},{"saturation":-100},{"lightness":52},{"gamma":1}]},{"featureType":"water","stylers":[{"hue":"#0078FF"},{"saturation":-13.200000000000003},{"lightness":2.4000000000000057},{"gamma":1}]},{"featureType":"poi","stylers":[{"hue":"#00FF6A"},{"saturation":-1.0989010989011234},{"lightness":11.200000000000017},{"gamma":1}]}]

Zonnewijzer

Uw browser ondersteunt geen WebGL

Reageer

Uw bericht is naar ons verzonden. Wij nemen zo snel mogelijk contact met u op.

Er is iets mis gegaan met het versturen van het formulier.
Controleer of u alle velden (goed) heeft ingevoerd en probeer het nog een keer.

Hoeveel is ?