Loodwitmolen 29 - Zwolle

Vraagprijs   € 589.500 k.k.  

Verkocht onder voorbehoud

Omschrijving

RUIME UITGEBOUWDE ENERGIEZUINIGE HOEKWONING MET MAAR LIEFST 5 SLAAPKAMERS

Op een vrije open locatie staat deze 146 m² tellende uitgebouwde hoekwoning. De woning ‘springt’ uit de rij, door zijn hogere dak. Iets wat ook écht te merken is op de tweede verdieping, met een plafondhoogte van 437 cm! De woning heeft karakter door zijn brede dak overstek en de robuuste witte omlijsting rond sommige kozijnen. Energiezuinig is ook een sleutelwoord bij deze woning. Door zijn 26 zonnepanelen (6 oost en 20 west) wordt er momenteel maar € 30,- per maand aan energie betaald. Zo houd jij geld over voor leuke dingen! Fijn als de zon dan ook lekker schijnt. In dat geval komen de rondom aangebrachte zonwerende screens zeker ook goed van pas.

BEGANE GROND

Jouw auto parkeer je naast of vóór de woning. Onder de kleine luifel aan de zijgevel betreed je de woning. Een leuk element is de gemetselde bloembak naast de entree. Bij binnenkomst in de hal heb je meteen rechts toegang tot het toilet en links bevindt zich de meterkast. Het toilet is uitgevoerd met een wandcloset en voorzien van een fonteintje. Een gevelraam zorgt voor daglicht en extra ventilatie.

Vanuit de hal bereik je de woonruimte. Aan de voorzijde is de keuken aangebracht. Deze is uitgevoerd in een hoekopstelling en voorzien van inbouwapparatuur. Vanuit de keuken is er fraai zicht op het groen aan de voorzijde. De laminaatvloer is afgewerkt met een hoge witte plint en is voorzien van comfortabele vloerverwarming!

De riante uitgebouwde woonkamer heeft veel lichtinval door de grote glazen pui met dubbele tuindeuren met zijramen. Ook het raam in de zijgevel zorgt voor prettige lichtinval in deze ruim bemeten woonkamer. Er is ruim plaats voor een grote eettafel. Onder de trapopgang is een praktische trapkast aangebracht. Naast de trapkast tref je de deur die toegang geeft tot de trapopgang naar de verdieping.

EERSTE VERDIEPING

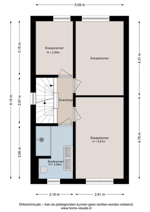
De trapopgangen beschikken over veel daglicht door de ramen in de zijgevel. De overloop biedt toegang tot drie slaapkamers en de badkamer. De slaapkamers hebben oppervlakten van 7 m², ruim 12 m² en ruim 13 m². Wat opvalt zijn de hoge deuren die nagenoeg tot aan het plafond lopen. De badkamer is uitgevoerd met een ruime inloopdouche met schuifdeursysteem en ingebouwde kraanbediening voor de handdouche en de stortdouche. De dubbele wastafel is voorzien van moderne wandkranen en opbergladen. Een gevelraam zorgt voor daglicht en extra ventilatie. Erg comfortabel is de vloerverwarming! Uiteraard tref je hier ook een 2e wandcloset.

TWEEDE VERDIEPING

De trapopgang brengt je langs het gevelraam naar de voorzolder. Vanaf de overloop is er toegang tot twee slaapkamers en de technische/wasruimte. De overloop is voorzien van een airco, waarmee je kunt koelen én verwarmen. De brede dakkapel aan de achterzijde wordt door beide slaapkamers benut. Op de grootste slaapkamer kijk je helemaal tot in de nok van de kap. Deze hoogte zorgt voor een extra ruimtelijke beleving. Ook deze slaapkamer beschikt over een airco, waarmee je kunt koelen én verwarmen.

TUIN

De achtertuin is ruim 9 meter diep en ruim 8 meter breed. De tuin is bereikbaar langs de zijkant van de woning, maar ook via een zijdeur aan de achterzijde van de tuin. Achter in de tuin is een grote overkapping geplaatst die toegang geeft tot de houten schuur. Onder deze overkapping tref je ook de buitenunit van de warmtepomp. De tuin is sierlijk aangelegd met een prettige afwisseling tussen groen en terras. Aan de achtergevel van de woning is een buitenkraan aangebracht. Aan de vrije zijde is als erfafscheiding gekozen voor metalen hekwerk tussen robuuste gemetselde kolommen. Een solide groene oplossing die weinig ruimte in beslag neemt.

De bezichtigingen worden ingepland in de week van 1 december.

Kenmerken

Overdracht

Prijs
€ 589.500 k.k.
Status
Verkocht onder voorbehoud
Oplevering
In overleg

Bouw

Soort woonhuis
Eengezinswoning, Hoekwoning
Soort bouw
Bestaande bouw
Bouwjaar
2020
Onderhoud binnen
Goed
Onderhoud buiten
Goed

Oppervlakten en inhoud

Woonoppervlakte
146m²
Perceeloppervlakte
187m²
Inhoud
536m³

Indeling

Aantal kamers
7
Aantal slaapkamers
5
Aantal badkamers
1
Verdiepingen
3

Energie

Energielabel
A
Isolatie
Volledig geisoleerd
Verwarming
Elektrische verwarming, Vloerverwarming gedeeltelijk

Buitenruimte

Ligging
In woonwijk, Open ligging, Vrij uitzicht
Tuin
Achtertuin, Voortuin, Zijtuin
Achtertuin
Noordoost, 67m², 700×950m
Schuur
Vrijstaand hout
Faciliteiten schuur
Voorzien van elektra

Garage

Locatie

[ { "address": "Loodwitmolen 29", "zipCode": "8044 TL", "city": "Zwolle", "lat": 52.542828, "lng": 6.0471442 } ]
[{"featureType":"landscape","stylers":[{"hue":"#FFBB00"},{"saturation":43.400000000000006},{"lightness":37.599999999999994},{"gamma":1}]},{"featureType":"road.highway","stylers":[{"hue":"#FFC200"},{"saturation":-61.8},{"lightness":45.599999999999994},{"gamma":1}]},{"featureType":"road.arterial","stylers":[{"hue":"#FF0300"},{"saturation":-100},{"lightness":51.19999999999999},{"gamma":1}]},{"featureType":"road.local","stylers":[{"hue":"#FF0300"},{"saturation":-100},{"lightness":52},{"gamma":1}]},{"featureType":"water","stylers":[{"hue":"#0078FF"},{"saturation":-13.200000000000003},{"lightness":2.4000000000000057},{"gamma":1}]},{"featureType":"poi","stylers":[{"hue":"#00FF6A"},{"saturation":-1.0989010989011234},{"lightness":11.200000000000017},{"gamma":1}]}]

Zonnewijzer

Uw browser ondersteunt geen WebGL

Reageer

Uw bericht is naar ons verzonden. Wij nemen zo snel mogelijk contact met u op.

Er is iets mis gegaan met het versturen van het formulier.
Controleer of u alle velden (goed) heeft ingevoerd en probeer het nog een keer.

Hoeveel is ?